St Albans 40
The St Albans 40 Cottage features three well-designed bedrooms and is built for modern Australian living, combining smart functionality with timeless style. The kitchen includes overhead cabinetry and a premium natural stone benchtop, delivering both practicality and elegance. Fly screens are fitted to all doors and windows, with provision for air-conditioning to ensure year-round comfort. Completing the design, the deck is finished with a trussed gable roof, insulated roof panels, and durable external cladding—built for long-lasting performance in Australian conditions.
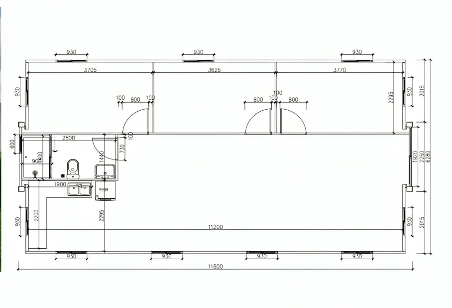
Specifications
-
Size when opened:
12000mm L x 6700mm W x 2900mm H -
Size when closed:
12000mm L x 2400mm W x 2600mm H - Internal Size 11700mm L x 6500mm W x 2600mm H
- Internal Ceiling Height 2400mm -
-
Balcony
6700mm L x 1200mm W - Living Area =80 m2
- Weight = 6000 kilos
Download Pdfs
Features
- Three-bedroom layout
- Kitchen equipped with overhead cupboards and a natural stone benchtop
- Bathroom includes a natural stone vanity, shaving cabinet, and provision for a washing machine
- Separate designated living and dining areas
- Fly screens on doors and windows
- Provision for air-conditioning
- Entry canopy with lighting
- Certified electrical and plumbing
- This unit has customisable options
Meet The Builder
My name is Bosko Stojanovski
I am a registered building practitioner (Registration number DB-U 73403) from Keilor, Melbourne, Victoria.
I have been practicing building and construction since 1999. I started managing my own construction business in 2008 and am constantly curious and innovative towards next generation sustainable living. With a strong and extensive background in residential and domestic building, I have started a venture that operates as a business, but also serves the community and geography – which is affordable, functional and energy effective sustainable living solutions.
Our luxury Tiny homes are designed as a turn key package including all the bells and whistles one could ask for.
Our Container homes are cost-effective, superior quality, 10 years warranty policy plus much much more aims to make sustainable living affordable.
- 0415 308 765
- contact@containableluxury.com.au
- 13 Gardiner Lane, Truganina Melbourne, Victoria 3029
Frequently Asked Questions
At present, there is no uniform legislation (nationally) that relates specifically to ‘relocatable homes’. Containable Luxury range of products relocatable homes are designed to be mounted on an ADR approved trailer for use as a registerable caravan and not sold as Class 1A Buildings.Containable Luxury range of products are flexible, versatile, and relocatable solutions that can be used for various applications, including pool houses, separate rumpus rooms, storage space, offices, construction site offices, as well as for Caravan & Holiday parks. However, it is crucial for customers to thoroughly understand the regulations relevant to their local area and specific use to ensure compliance.
We acknowledge the inconsistency of local council legislation and regulations surrounding Tiny Homes, and we understand the frustration of being restricted and denied access to affordable living solutions.
For more information about our range of relocatable homes,
Bobby Stojanovski- manufacturer/builder
m : 0415 308 765
office : 1300 966 361
Containable Luxury provides a comprehensive 3 years warranty that includes a multi-year structural warranty, along with a separate warranty covering fixtures, fittings, and finishes. This warranty does not cover normal wear and tear, accidental damage, misuse, or damage caused by extreme weather conditions or natural events. To ensure continued coverage, we recommend keeping the unit well maintained and securely positioned. For complete warranty details, please feel free to contact us.
Yes, your unit can be customised to suit your specifications and design requirements, directly overseen construction imported product from registered builder with over 25 years experience in the construction industry. Specifications and materials list supplied
Transparency & communication throughout process
Yes, we offer delivery and installation services to ensure a seamless and hassle-free experience.
Delivery of in-stock units can happen right away. For customised models or those currently out of stock, you can expect a delivery period of around 12-18 weeks.
Containable Luxury relocatable big tiny homes are designed to be mounted on an ADR approved trailer for use as a registerable caravan and not sold as Class 1A Buildings.
⭐️20% - Security Deposit
⭐️30% - While in process of Construction with full transparency, communication and direct contact with Bobby Stojanovski m: 0415 308 765
⭐️30% - On loading of dwelling
⭐️20% - On arrival .






